Izdavanje i prodaja lokala u Beogradu na najprometnijim lokacijama.

  • Telefon

  • 011/ 334 88 71

  • 011/ 334 88 36

line
  • Beograd

  • Beogradska 71

line

Stari grad, Donji Dorćol - Šantićeva, 91m2

Beograd, Stari Grad

Opis

Stari grad, Donji Dorćol - Šantićeva

4. 0, 91m2, VPR/2, grejanje na struju, interfon, podrum

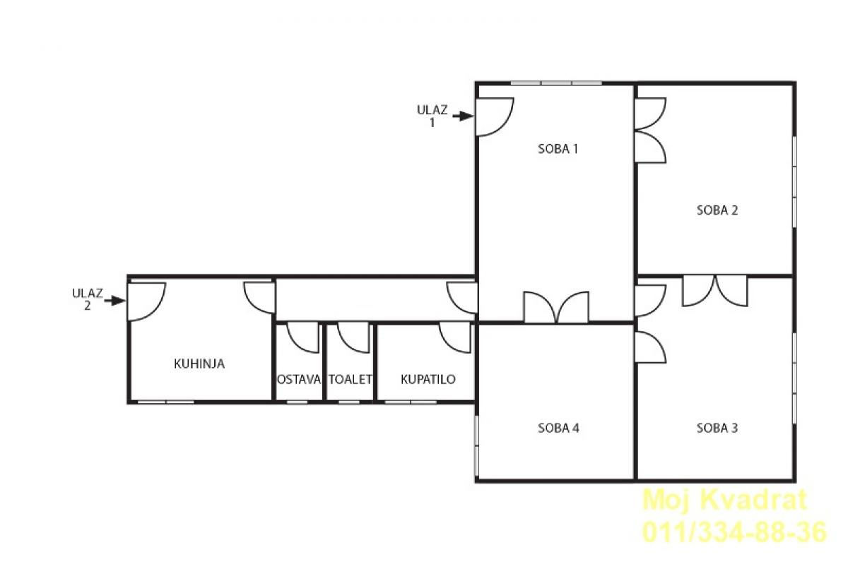
U ponudi za prodaju autentičan, četvorosoban, salonski stan (visina plafona 3. 40m) u neposrednoj blizini Bajlonijeve pijace. Stan je u izvornom stanju, trostrano je orijentisan i pozicioniran na visokom prizemlju zgrade koja ima svoje dvorište.

Sastoji se od četiri izuzetno prostrane sobe, kuhinje, kupatila, toaleta i ostave. Takođe, stan poseduje pripadajući podrum od 14m2.

Odličan potencijal za život ili poslovni prostor.

Uknjižen na 91m2.

Agencijska provizija 2%

Agent: Svetlana Todorov 066/239-141 (licenca br. 6305)

91 m2 4 1 0

Podaci

Šifra oglasa K1-22773
Tip Stan
Ukupna cena 380.000 €
Kvadratura 91 m2
Broj soba 4
Broj kupatila 1
Usluga Prodaja
Godina izgradnje 1930
Sprat vp
Broj spratova 2

Karakteristike

  • Podrum
  • Uknjiženo
  • Interfon

Kontakt Info

MOJ KVADRAT D.O.O.

011/ 334 88 71

011/ 334 88 36

065/303-94-39

Mapa

Klikom aktivirajte mapu
  • Telefon

  • 011/ 334 88 71

  • Beograd

  • Beogradska 71