Izdavanje i prodaja lokala u Beogradu na najprometnijim lokacijama.

  • Telefon

  • 011/ 334 88 71

  • 011/ 334 88 36

line
  • Beograd

  • Beogradska 71

line

Savski venac, Senjak - Sitnička, 53m2

Beograd, Savski Venac

Opis

Savski venac, Senjak - Sitnička

2. 5, 53m2, terasa, PR+I, EG, telefon, interfon

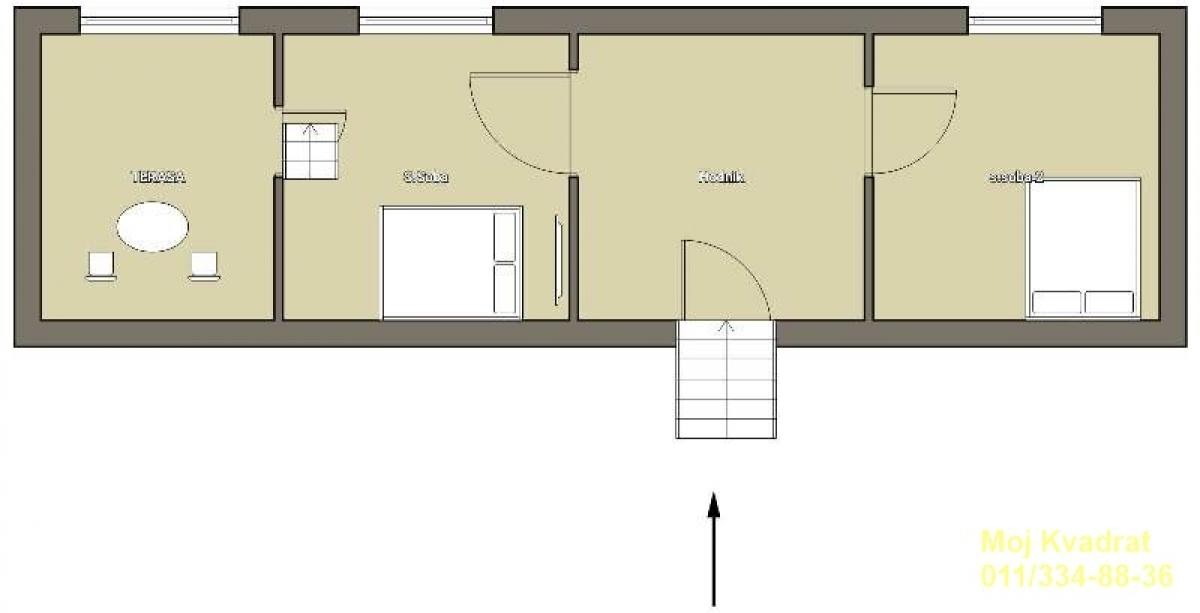
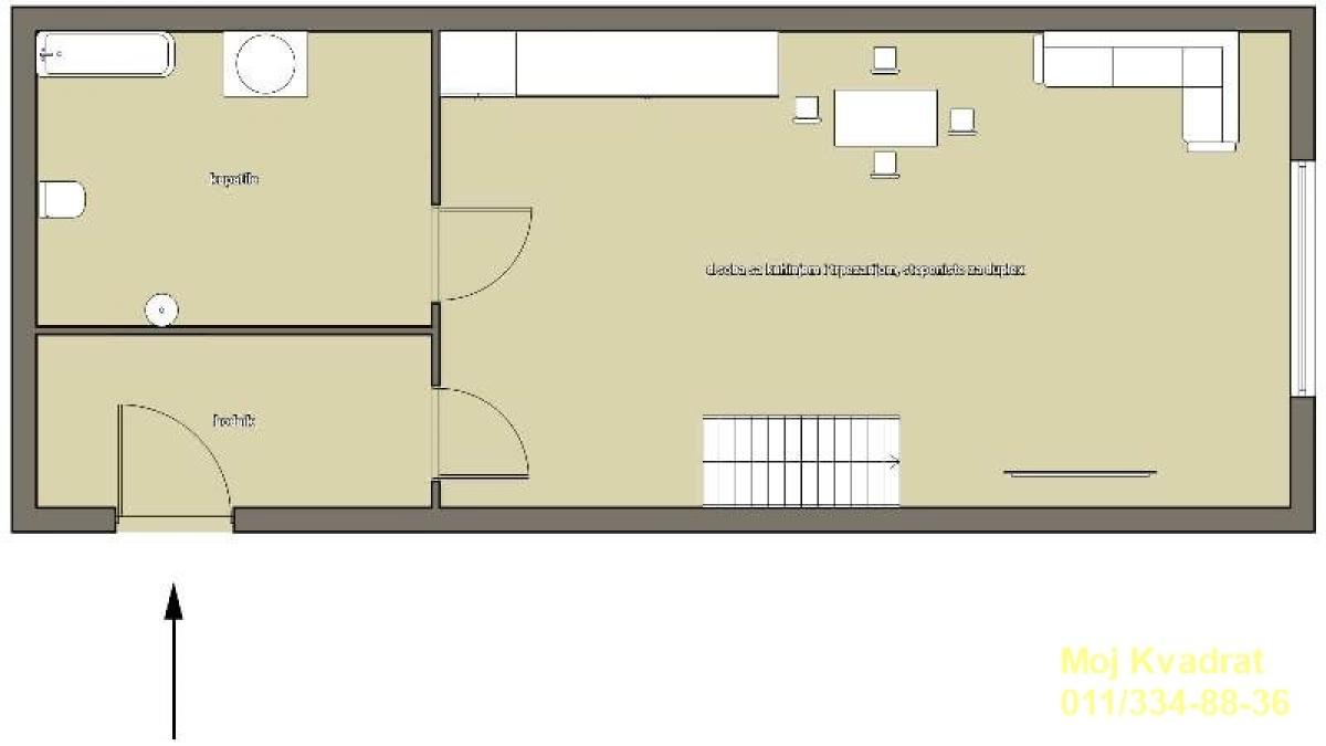
Hitna prodaja stana - renoviran dupleks na Senjaku, pored BIGZ-a.

Ima dve etaže. Donja etaža se sastoji iz hodnika, dnevno - trpezarijskog dela i kupatila. Stepenice u dnevnom boravku vode do gornje etaže u kojoj se nalaze hodnik, dve spavaće sobe i zastakljena terasa.

Nalazi se u mirnom kraju i ima dobru povezanost sa ostalim delovima grada.

Uknjižen bez upisane kvadrature, merena kvadratura iznosi 53m2.

Agencijska provizija 2%

Agent: Vladimir Nikolić 065/27-10-107 (licenca br. 6571)

53 m2 2.5 1 0

Podaci

Šifra oglasa K1-23025
Tip Stan
Ukupna cena 205.000 €
Kvadratura 53 m2
Broj soba 2.5
Broj kupatila 1
Usluga Prodaja
Sprat pr
Broj spratova 1
Terasa Da
Grejanje EG

Karakteristike

  • Uknjiženo
  • Telefon
  • Interfon

Kontakt Info

MOJ KVADRAT D.O.O.

011/ 334 88 71

011/ 334 88 36

065/303-94-39

Mapa

Klikom aktivirajte mapu
  • Telefon

  • 011/ 334 88 71

  • Beograd

  • Beogradska 71