Izdavanje i prodaja lokala u Beogradu na najprometnijim lokacijama.

  • Telefon

  • 011/ 334 88 71

  • 011/ 334 88 36

line
  • Beograd

  • Beogradska 71

line

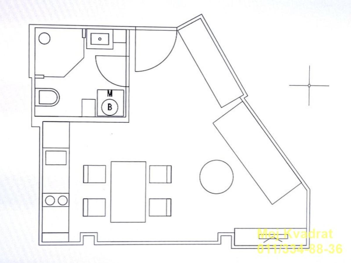
Savski venac, Senjak - Vrnjačka, 28m2

Beograd, Savski Venac

Opis

Savski venac, Senjak - Vrnjačka

0. 5, 28m2, 7/7, grejanje na struju, inverter klima, lift, interfon, parking

U ponudi za izdavanje potpuno renovirana, moderno nameštena garsonjera na Senjaku, u stambenoj zgradi. Stan se nalazi na sedmom spratu zgrade koja ima lift. Prostor je veoma osunčan i prozračan. Stanarima je na raspolaganju i krovna terasa iznad stana sa koje se pruža pogled na ceo grad.

Grejanje je na struju, a ima i inverter klimu.

Oko ulaza zgrade instalirani su stubići za parking, dostupni samo stanarima zgrade.

Odlična je povezanost sa svim delovima grada. U neposrednoj blizini je pijaca, veliki market, škola, autobuska stanica.

Kućni ljubimci nisu dozvoljeni.

Obavezan je depozit u visini jedne mesečne kirije.

Agencijska provizija u skladu sa Opštim uslovima poslovanja.

Agent: Svetlana Todorov 066/239-141 (licenca br. 6305)

28 m2 0.5 1 0

Podaci

Šifra oglasa K1-23150
Tip Garsonjera
Ukupna cena 500 €
Kvadratura 28 m2
Broj soba 0.5
Broj kupatila 1
Parking Da
Usluga Izdavanje
Godina izgradnje 1970
Sprat 7
Broj spratova 7
Terasa Da

Karakteristike

  • Klima
  • Interfon

Kontakt Info

MOJ KVADRAT D.O.O.

011/ 334 88 71

011/ 334 88 36

065/303-94-39

Mapa

Klikom aktivirajte mapu
  • Telefon

  • 011/ 334 88 71

  • Beograd

  • Beogradska 71