Izdavanje i prodaja lokala u Beogradu na najprometnijim lokacijama.

  • Telefon

  • 011/ 334 88 71

  • 011/ 334 88 36

line
  • Beograd

  • Beogradska 71

line

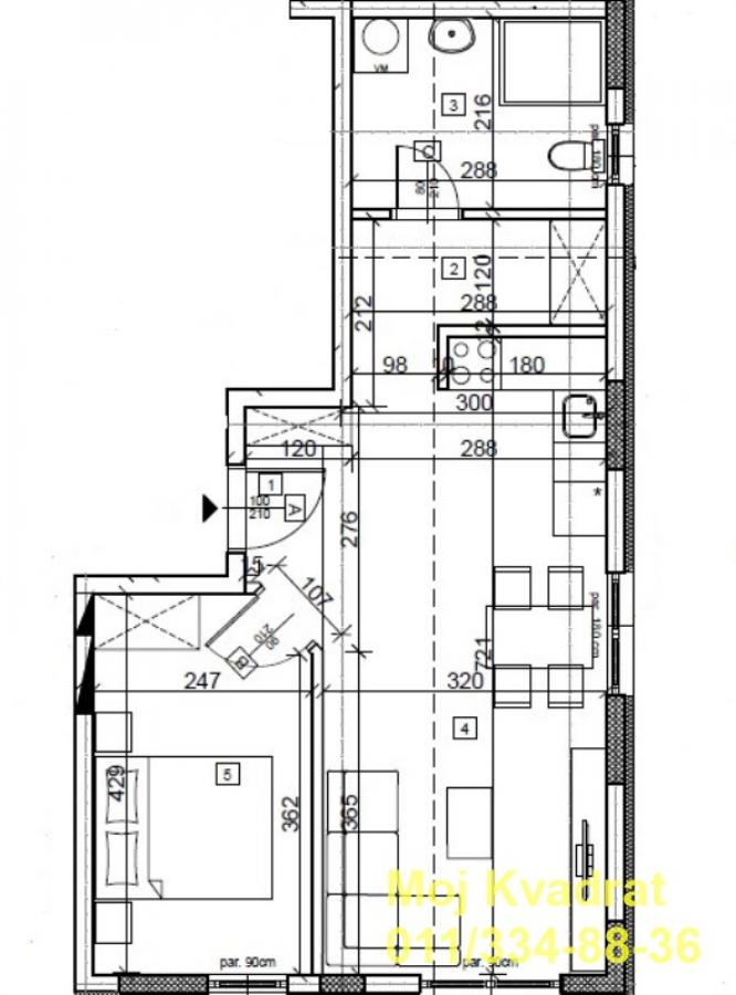
Zvezdara - Učiteljsko naselje, 45m2

Beograd, Zvezdara

Opis

Zvezdara - Učiteljsko naselje

1. 5, 45m2, PR/5, EG - podno grejanje, lift, telefon, interfon, garaža

Izdvajamo iz ponude stanove različitih struktura jednoiposoban, dvosoban i dvoiposoban na različitim etažama u modernoj novogradnji na jednoj od najtraženijih lokacija u Beogradu, u Učiteljskom naselju.

Zgrada se nalazi u mirnom delu, u blizini pijace, doma zdravlja, šoping centra i svih sadržaja neophodnih za udoban gradski život.

Prilikom gradnje primenjuju se najviši standardi, uz korišćenje vrhunskih materijala koji garantuju dugovečnost i maksimalnu udobnost stanovanja. U ponudi su vrhunska keramika, šestokomorna stolarija, moderan lift, kao i visok kvalitet završne obrade i prijatan izgled ulaza i zajedničkih prostorija.

Svi stanovi imaju ugrađeno etažno podno grejanje, što obezbeđuje niske mesečne troškove i veću energetsku efikasnost. Predstavljaju idealan spoj funkcionalnosti i luksuza, bilo da tražite porodični dom ili sigurnu investiciju za izdavanje.

Cene stanova iskazane su sa uračunatim PDV-om.

Postoji mogućnost kupovine parking mesta u garaži (sistem klackalice) po ceni od 23. 000 € + PDV.

Rok završetka decembar 2026. godine.

Građevinska dozvola.

Agencijska provizija 2%.

45 m2 1.5 1 1

Podaci

Šifra oglasa K1-23192
Tip Stan
Ukupna cena 158.700 €
Kvadratura 45 m2
Broj soba 1.5
Broj kupatila 1
Usluga Prodaja
Godina izgradnje 2026
Garaža 1
Sprat pr
Broj spratova 5
Grejanje EG

Karakteristike

  • Novogradnja
  • Lift
  • Telefon
  • Interfon

Kontakt Info

MOJ KVADRAT D.O.O.

011/ 334 88 71

011/ 334 88 36

065/303-94-39

Mapa

Klikom aktivirajte mapu
  • Telefon

  • 011/ 334 88 71

  • Beograd

  • Beogradska 71