Izdavanje i prodaja lokala u Beogradu na najprometnijim lokacijama.

  • Telefon

  • 011/ 334 88 71

  • 011/ 334 88 36

line
  • Beograd

  • Beogradska 71

line

Palilula, Palilulska pijaca - 27. marta, 105m2

Beograd, Palilula

Opis

Palilula, Palilulska pijaca - 27. marta

poslovni prostor, 2. 0, 105m2, dve terase, CG, 1/4, interfon

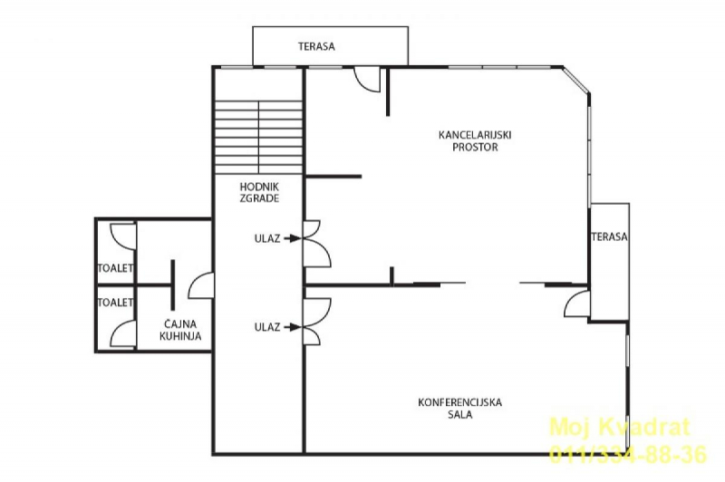
Kompletno namešten poslovni prostor kod Palilulske pijace u poslovnom delu stambeno poslovne zgrade novije gradnje.

Sastoji se od dve kancelarije, čajne kuhinje i toaleta.

Preko puta zgrade se nalazi javna garaža.

Agencijska provizija u skladu sa Opštim uslovima poslovanja.

Agent: Nemanja Đoković 066/57-52-212 (licenca br. 5118)

105 m2 2 0 0

Podaci

Šifra oglasa K1-21126
Tip Poslovni prostor
Ukupna cena 1.800 €
Kvadratura 105 m2
Broj soba 2
Usluga Izdavanje
Godina izgradnje 2008
Sprat 1
Broj spratova 4
Grejanje Centralno

Karakteristike

  • Interfon

Kontakt Info

MOJ KVADRAT D.O.O.

011/ 334 88 71

011/ 334 88 36

065/303-94-39

Mapa

Klikom aktivirajte mapu
  • Telefon

  • 011/ 334 88 71

  • Beograd

  • Beogradska 71