Izdavanje i prodaja lokala u Beogradu na najprometnijim lokacijama.

  • Telefon

  • 011/ 334 88 71

  • 011/ 334 88 36

line
  • Beograd

  • Beogradska 71

line

Palilula, Palilulska pijaca - 27. marta, 105m2

Beograd, Palilula

Opis

Palilula, Palilulska pijaca - 27. marta

poslovni prostor, 2. 0, 105m2, dve terase, 1/4, CG, interfon

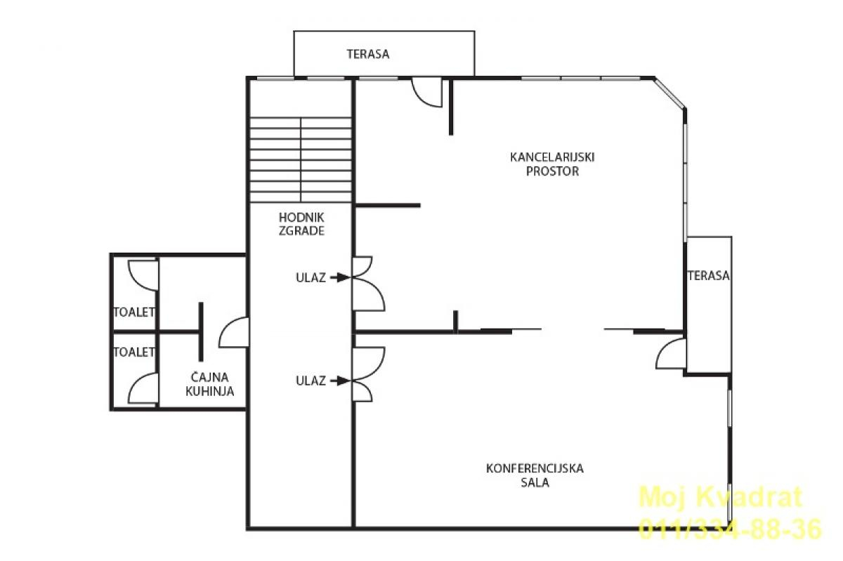
U ponudi za prodaju poslovni prostor u poslovnom delu zgrade površine 105m2.

Sastoji se od sale za sastanke i velike kancelarije. Takođe, poseduje toalet, kao i dve terase.

Prodaje sa namešten sa svim kancelarijskim nameštajem.

Uknjižen na 105m2.

Agencijska provizija 2%

Agent: Nemanja Đoković 066/57-52-212 (licenca br. 5118)

105 m2 2 0 0

Podaci

Šifra oglasa K1-22765
Tip Poslovni prostor
Ukupna cena 525.000 €
Kvadratura 105 m2
Broj soba 2
Usluga Prodaja
Sprat 1
Broj spratova 4
Grejanje Centralno

Karakteristike

  • Uknjiženo
  • Interfon

Kontakt Info

MOJ KVADRAT D.O.O.

011/ 334 88 71

011/ 334 88 36

065/303-94-39

Mapa

Klikom aktivirajte mapu
  • Telefon

  • 011/ 334 88 71

  • Beograd

  • Beogradska 71