Izdavanje i prodaja lokala u Beogradu na najprometnijim lokacijama.

  • Telefon

  • 011/ 334 88 71

  • 011/ 334 88 36

line
  • Beograd

  • Beogradska 71

line

Vračar, Hram Svetog Save - Nebojšina, 68m2

Beograd, Vračar

Opis

Vračar, Hram Svetog Save - Nebojšina

2. 0, 68m2 (terasa 7m2), 4/4, CG sa kalorimetrima

U ponudi za prodaju sređen, dvosoban stan na Vračaru, na četvrtom spratu zgrade bez lifta, koji iznenađuje lakoćom. Nalazi se nadomak Hrama Svetog Save i spaja sve što tražite - otvoren pogled, puno sunca, tišina i skladan raspored. Stan koji se doživi, ne samo vidi!

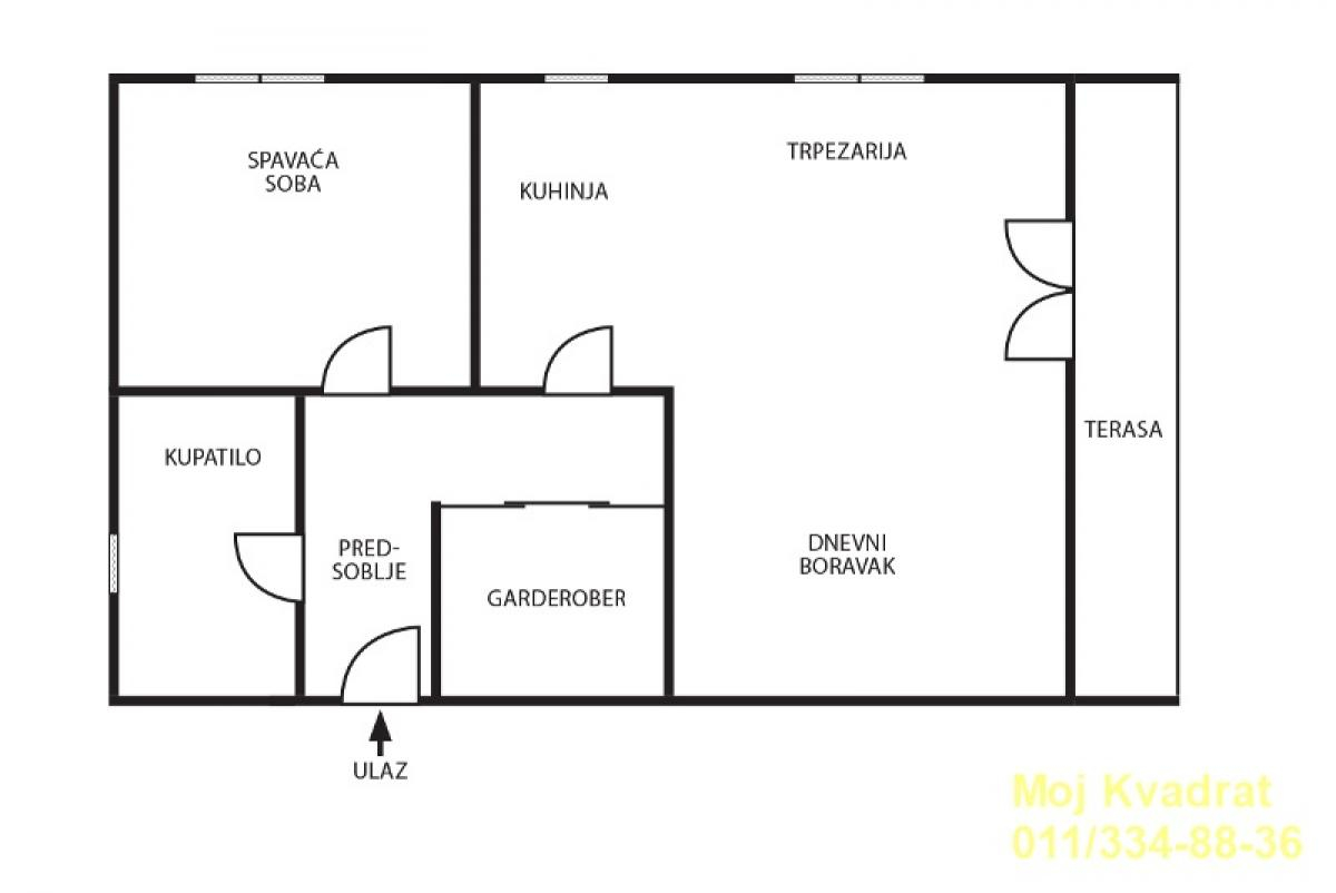
Sastoji se od prostranog dnevnog boravka sa trpezarijom i kuhinjom (koncept otvorenog prostora), spavaće sobe, kupatila i terase. Takođe, stan poseduje i poseban skriveni ugradni orman.

Prodaje se sa ugradnom kuhinjom i belom tehnikom. Postoji mogućnost dogovora za prodaju sa svim stvarima.

Parking je slobodan i uvek se može naći mesto za automobil.

Uknjižen na 61m2.

Agencijska provizija 2%

Agent: Ivana Zeković 060/67-56-640 (licenca br. 3830)

68 m2 2 1 0

Podaci

Šifra oglasa K1-22791
Tip Stan
Ukupna cena 285.000 €
Kvadratura 68 m2
Broj soba 2
Broj kupatila 1
Usluga Prodaja
Sprat 4
Broj spratova 4
Terasa Da
Grejanje Centralno

Karakteristike

  • Uknjiženo

Kontakt Info

MOJ KVADRAT D.O.O.

011/ 334 88 71

011/ 334 88 36

065/303-94-39

Mapa

Klikom aktivirajte mapu
  • Telefon

  • 011/ 334 88 71

  • Beograd

  • Beogradska 71