Izdavanje i prodaja lokala u Beogradu na najprometnijim lokacijama.

  • Telefon

  • 011/ 334 88 71

  • 011/ 334 88 36

line
  • Beograd

  • Beogradska 71

line

Zvezdara, Učiteljsko naselje - Kačićeva, 143m2

Beograd, Zvezdara

Opis

Zvezdara, Učiteljsko naselje - Kačićeva

kuća, 143m2 (terasa 13m2), SUT+PR+I, plac 1, 33 ari, EG

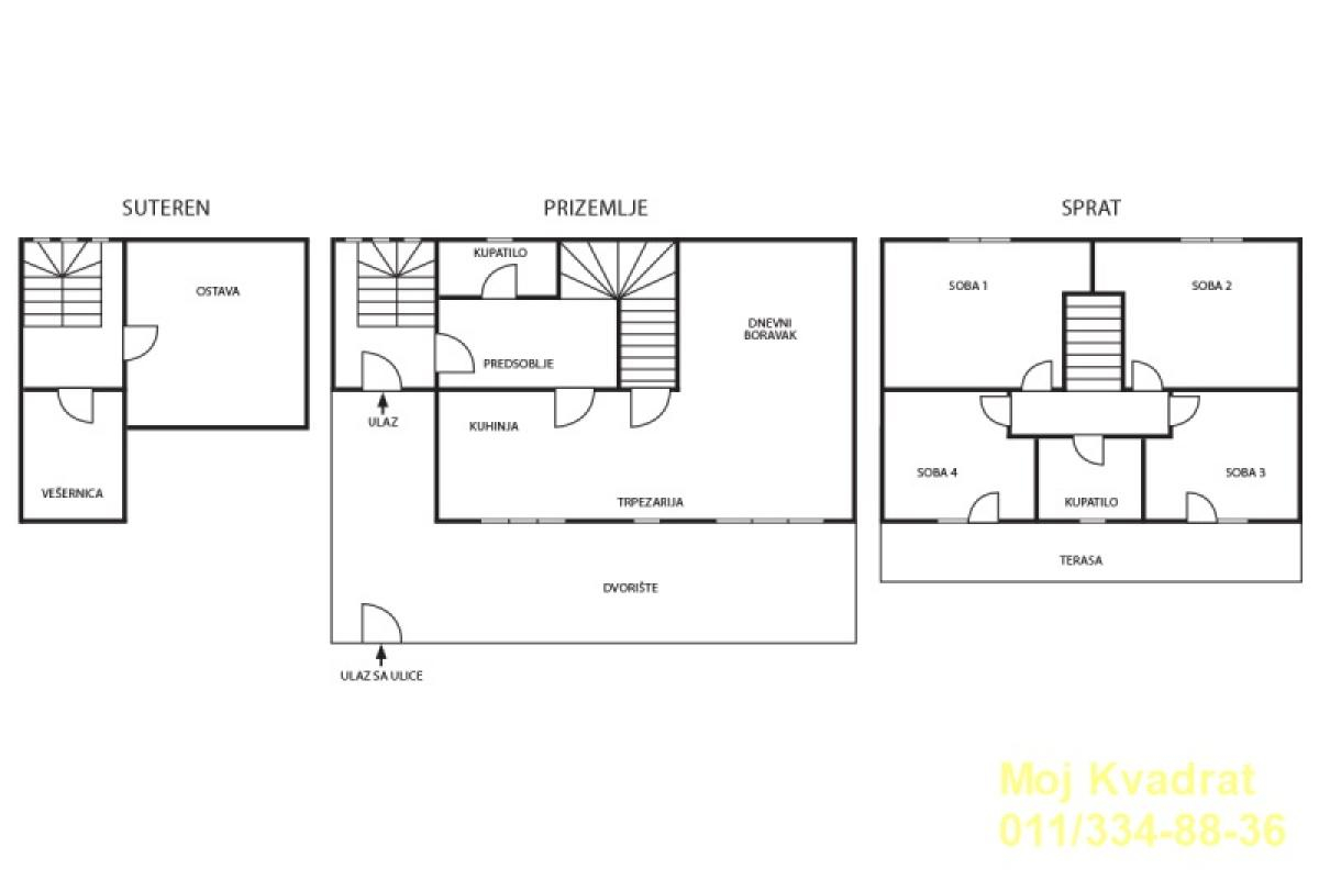
U ponudi za prodaju komforna i funkcionalna petosobna kuća iz 1990. godine.

Sastoji se od suterena, prizemlja i prvog sprata. U suterenu se nalaze dve prostorije u kojima su smešteni kotao za grejanje i vešeraj. Prizemlje poseduje ulazni deo, predsoblje, dnevni boravak sa trpezarijom i kuhinjom, kupatilo i ostavu, dok se na spratu nalaze hodnik, tri spavaće sobe, radna soba i drugo kupatilo.

Blizina Cvetkove pijace, doma zdravlja, SC Olimp, TC Aviv Park...

Idealna je za višečlanu porodicu ili kao investicija za izdavanje.

Samo keš kupci!

Uknjižena na 58m2, stvarna merena površina iznosi 143m2.

Agencijska provizija 2%

Agent: Verica Ilić 063/254-891 (licenca br. 1780)

143 m2 5 2 0

Podaci

Šifra oglasa K1-22901
Tip Kuća
Ukupna cena 245.000 €
Kvadratura 143 m2
Broj soba 5
Broj kupatila 2
Usluga Prodaja
Godina izgradnje 1990
Sprat pr
Broj spratova 1
Terasa Da
Grejanje EG

Karakteristike

  • Uknjiženo

Kontakt Info

MOJ KVADRAT D.O.O.

011/ 334 88 71

011/ 334 88 36

065/303-94-39

Mapa

Klikom aktivirajte mapu
  • Telefon

  • 011/ 334 88 71

  • Beograd

  • Beogradska 71