Izdavanje i prodaja lokala u Beogradu na najprometnijim lokacijama.

  • Telefon

  • 011/ 334 88 71

  • 011/ 334 88 36

line
  • Beograd

  • Beogradska 71

line

Stari grad, centar – Balkanska

Beograd, Stari Grad

Opis

Stari grad, centar – Balkanska

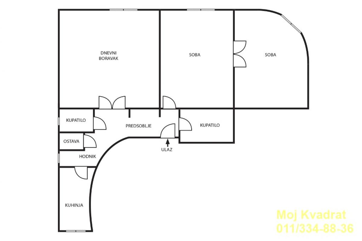
3. 0, 110m2, 3/5, CG, klime, lift, interfon, podrum

U zgradi bivše „Mlinarske zadruge“, u strogom centru Beograda, prodaje se trosoban stan, funkcionalnog rasporeda. Nalazi se na trećem spratu stambene zgrade, orijentisan jugozapadno i izuzetno je svetao.

Visina plafona izvorno iznosi 4 metara, ali je vlasnik prilikom renoviranja spustio plafone na 3 metra, sem u kuhinji gde je ostala originalna visina. Prilikom renoviranja, pre 10 godina, urađeno je kompletno sve od vodvoda, kanalizacije, elektro instalacija, do spoljne i unutrašnje stolarije, zidova i podova. Ulazna vrata su zamenjena – blindirana, ugrađene su roletne sa motornim pogonom, zamenjeni su svi radijatori i svaka soba je opremljena sa inverter klima uređajem.

Sama zgrada je veoma kvalitetna, očuvana i pod zaštitom. Poseduje lift, koji je renoviran i redovno održavan.

Uknjižen bez upisane kvadrature, stvarna merena kvadratura iznosi 110m2.

Agencijska provizija 2%.

Agent Slobodan Kalaba: 065/82-28-552 (licenca br. 2424)

110 m2 3 2 0

Podaci

Šifra oglasa K1-23088
Tip Stan
Ukupna cena 480.000 €
Kvadratura 110 m2
Broj soba 3
Broj kupatila 2
Usluga Prodaja
Godina izgradnje 1927
Sprat 3
Broj spratova 5
Grejanje Centralno

Karakteristike

  • Lift
  • Podrum
  • Uknjiženo
  • Klima
  • Interfon

Kontakt Info

MOJ KVADRAT D.O.O.

011/ 334 88 71

011/ 334 88 36

065/303-94-39

Mapa

Klikom aktivirajte mapu
  • Telefon

  • 011/ 334 88 71

  • Beograd

  • Beogradska 71