Izdavanje i prodaja lokala u Beogradu na najprometnijim lokacijama.

  • Telefon

  • 011/ 334 88 71

  • 011/ 334 88 36

line
  • Beograd

  • Beogradska 71

line

Savski venac, Slavija - Vojvode Milenka, 310m2

Beograd, Savski Venac

Opis

SAVSKI VENAC / SLAVIJA – UGOSTITELJSKI LOKAL SA DVE BAŠTE (310 m²)

Prodaje se ekskluzivan ugostiteljski lokal ukupne površine oko 310 m² na odličnoj lokaciji u zoni Slavija / Savski venac.

Struktura:

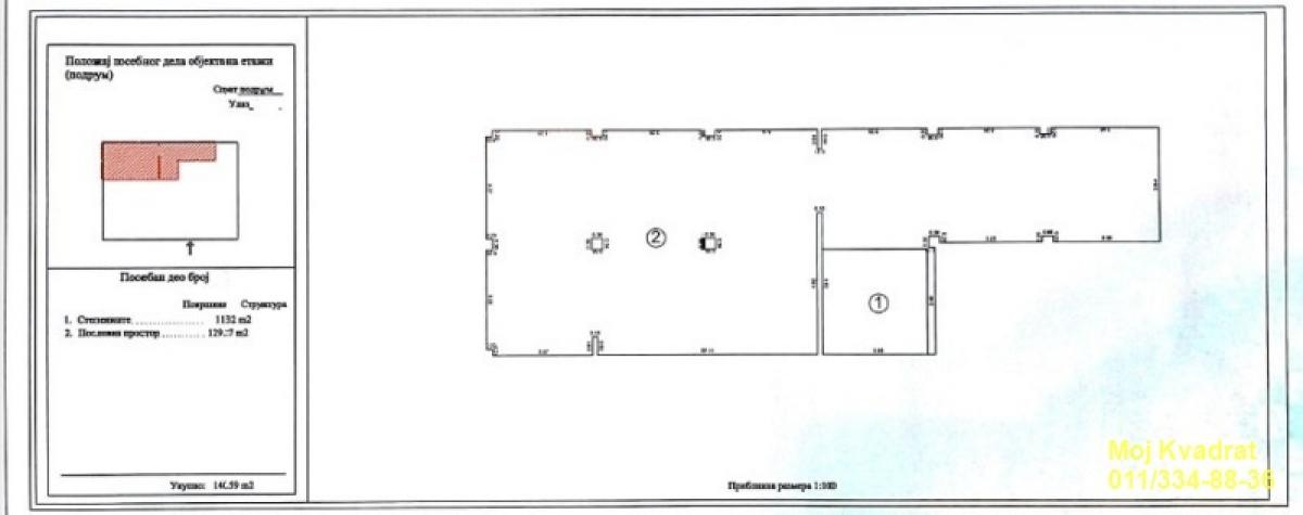
• Prizemlje 177 m² – visoki plafoni, otvoren prostor

• Suteren cca 130 m² – muški i ženski toaleti, pomoćne prostorije

• Dve bašte – ulično orijentisana i dvorišna

Prednosti lokala:

• Profesionalna ventilacija za kuhinju i ceo lokal

• Pogodno za restoran, kafić, lounge bar ili franšizu

• Frekventna i atraktivna lokacija

Uknjižen na 177m2.

Agencijska provizija 2%

SAVSKI VENAC / SLAVIJA – RESTAURANT SPACE WITH TWO GARDENS (310 sqm)

Premium hospitality space for sale, total area approx. 310 sqm, located in the Slavija / Savski Venac area.

Layout:

• Ground floor 177 sqm – high ceilings, open space

• Basement approx. 130 sqm – male & female restrooms, storage and service rooms

• Two garden areas – street front and courtyard

Key features:

• Professional ventilation system for kitchen and entire space

• Suitable for restaurant, café, lounge bar or franchise concept

• Busy and attractive location

Registered at 177m2.

Agency commission 2%

САВСКИ ВЕНАЦ / СЛАВИЯ – РЕСТОРАННОЕ ПОМЕЩЕНИЕ С ДВУМЯ ТЕРРАСАМИ (310 м²)

Продается помещение под ресторан общей площадью около 310 м² в районе Славия/Савски венац.

Структура:

• Первый этаж 177 м² – высокие потолки, открытое пространство

• Цоколь около 130 м² – мужской и женский туалеты, подсобные помещения

• Две террасы – уличная и во двор

Преимущества:

• Профессиональная вентиляция для кухни и всего помещения

• Подходит для ресторана, кафе, lounge bar или франшизы

• Оживленная и престижная локация

Объект зарегистрирован.

Комиссия агентства 2%

310 m2 0 0 0

Podaci

Šifra oglasa K1-23172
Tip Lokal
Ukupna cena 790.000 €
Kvadratura 310 m2
Broj soba 0
Usluga Prodaja
Sprat pr
Broj spratova 0

Karakteristike

  • Uknjiženo

Kontakt Info

MOJ KVADRAT D.O.O.

011/ 334 88 71

011/ 334 88 36

065/303-94-39

Mapa

Klikom aktivirajte mapu
  • Telefon

  • 011/ 334 88 71

  • Beograd

  • Beogradska 71