Izdavanje i prodaja lokala u Beogradu na najprometnijim lokacijama.

  • Telefon

  • 011/ 334 88 71

  • 011/ 334 88 36

line
  • Beograd

  • Beogradska 71

line

Zemun, Meandri - Bačka, 68m2

Beograd, Zemun

Opis

Zemun, Meandri - Bačka

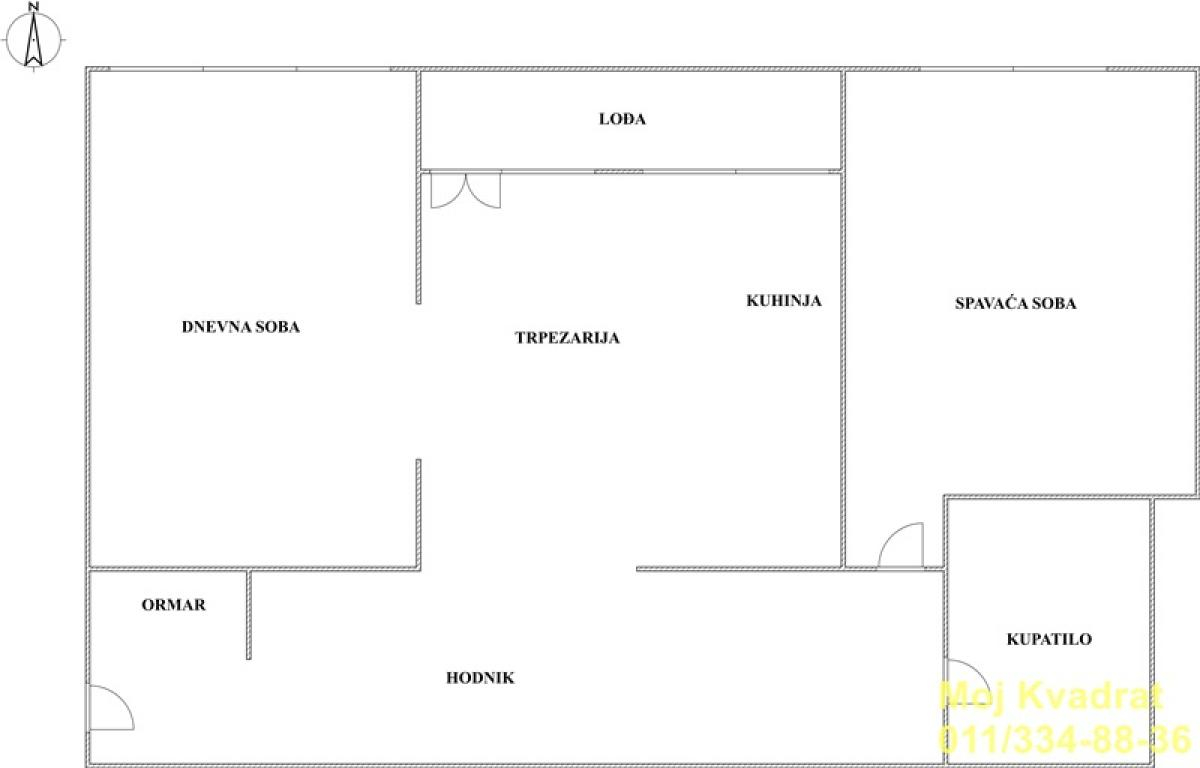
2. 0, 68m2 (lođa 10m2), 5/6, CG, lift, telefon, interfon, podrum, parking

Na prodaju komforan i funkcionalan dvosoban stan u Zemunu, naselje Meandri, u Bačkoj ulici. Nalazi se na petom spratu u zgradi sa liftom. Stan je kompletno i kvalitetno renoviran, sa posebnim akcentom na moderan dizajn i maksimalnu iskorišćenost prostora. Veoma je svetao zahvaljujući jugoistočnoj orijentaciji i velikim prozorima koji obezbeđuju obilje prirodne svetlosti tokom celog dana.

Posebno se izdvajaju moderno uređena kuhinja i elegantno kupatilo, rađeno u savremenom stilu. Iz stana se pruža otvoren i prijatan pogled na park, što dodatno doprinosi mirnoj i ugodnoj atmosferi za život.

Struktura stana: hodnik, dnevna soba, kuhinja sa trpezarijom, spavaća soba, kupatilo i terasa.

Stan se nalazi na odličnoj lokaciji, u neposrednoj blizini škole, vrtića, marketa i svih neophodnih sadržaja za kvalitetan svakodnevni život.

Uknjižen na 58m2. Stvarna merena kvadratura sa lođom iznosi 68m2.

Agencijska provizija 2%.

Agent: Đorđe Ćirković

68 m2 2 1 0

Podaci

Šifra oglasa K1-23217
Tip Stan
Ukupna cena 195.000 €
Kvadratura 68 m2
Broj soba 2
Broj kupatila 1
Parking Da
Usluga Prodaja
Godina izgradnje 1970
Sprat 5
Broj spratova 6
Grejanje Centralno

Karakteristike

  • Lift
  • Podrum
  • Uknjiženo
  • Telefon
  • Interfon

Kontakt Info

MOJ KVADRAT D.O.O.

011/ 334 88 71

011/ 334 88 36

065/303-94-39

Mapa

Klikom aktivirajte mapu
  • Telefon

  • 011/ 334 88 71

  • Beograd

  • Beogradska 71