Izdavanje i prodaja lokala u Beogradu na najprometnijim lokacijama.

  • Telefon

  • 011/ 334 88 71

  • 011/ 334 88 36

line
  • Beograd

  • Beogradska 71

line

Voždovac, Bioskop Voždovac - Isidore Sekulić, 145m2

Beograd, Voždovac

Opis

Voždovac, Bioskop Voždovac - Isidore Sekulić

kuća, 3. 0, 145m2 (terasa 10m2), PR+1+PTK, EG na struju, struja, voda, kanalizacija, asfalt, plac 0. 56a

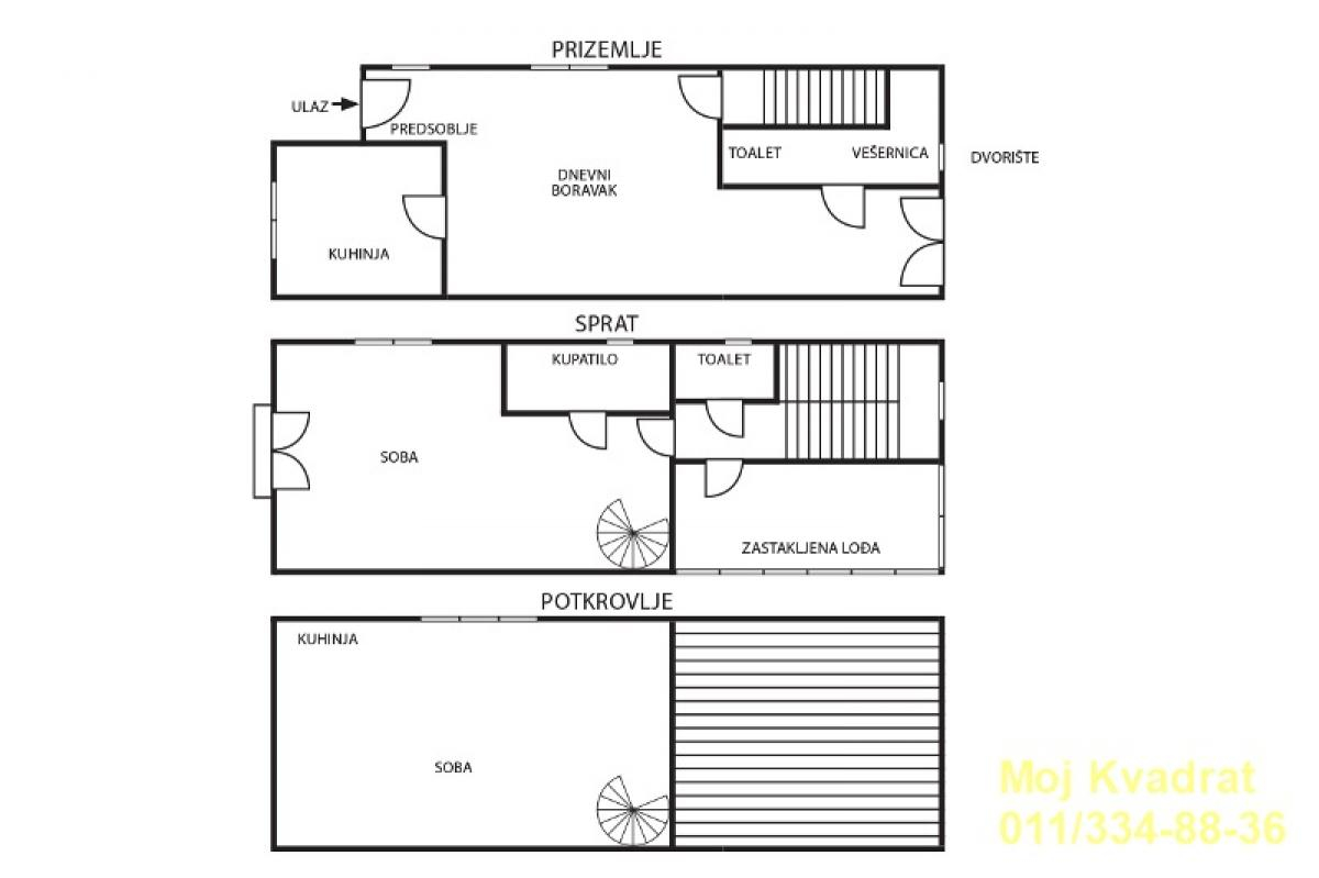
Prodaje se porodična kuća u mirnoj ulici, u blizini bioskopa Voždovac. Kuća je završena 2013. godine i spratnosti je PR+1+PTK.

U prizemlju se nalazi prostran dnevni boravak, kuhinja sa trpezarijom, mokri čvor sa ostavom, kao i hodnik iz kog se izlazi na uređeno dvorište. Na prvoj etaži smeštena je spavaća soba sa sopstvenim kupatilom, hodnik koji vodi ka zastakljenoj terasi, kao i dodatni gostinski toalet. Potkrovlje, koje je odlično izolovano, čini velika spavaća soba.

Kuća poseduje odličnu izolaciju, PVC stolariju sa roletnama i komarnicima. Grejanje je na struju, uz mogućnost podešavanja temperature.

Uknjižena na 114m2 korisne i 145m2 građevinske površine.

Agencijska provizija 2%

Agent: Vojka Joksović 064/55-55-196 (licenca br. 1790)

145 m2 3 0 0

Podaci

Šifra oglasa K1-23269
Tip Kuća
Ukupna cena 299.000 €
Kvadratura 145 m2
Broj soba 3
Usluga Prodaja
Sprat pr
Broj spratova 1
Terasa Da
Grejanje EG

Karakteristike

  • Uknjiženo
  • Interfon

Kontakt Info

MOJ KVADRAT D.O.O.

011/ 334 88 71

011/ 334 88 36

065/303-94-39

Mapa

Klikom aktivirajte mapu
  • Telefon

  • 011/ 334 88 71

  • Beograd

  • Beogradska 71