Izdavanje i prodaja lokala u Beogradu na najprometnijim lokacijama.

  • Telefon

  • 011/ 334 88 71

  • 011/ 334 88 36

line
  • Beograd

  • Beogradska 71

line

Čukarica, Filmski grad - Ratka Mitrovića, 57m2

Beograd, Čukarica

Opis

Čukarica, Filmski grad - Ratka Mitrovića

2. 0, 57m2 (lođa 5m2), 2/5, CG/gas, lift, telefon, interfon, parking, video nadzor

Prodajemo odličan, funkcionalan i kompletno sređen stan u novijoj zgradi iz 2010. godine. Zgrada je održavana i čista, sa liftom, a pored interfona ima i video nadzor. Stan se nalazi na drugom spratu, jugozapadno orijentisan sa odličnom izolacijojm i lođom koja je zastakljena (prozori imaju venecijanere i folije koji odbijaju svetlost) i ugradnim plakarom.

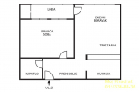
Prostorije: hodnik, kupatilo, spavaća soba, kuhinja odvojena pultom, dnevno-trpezarijski prostor i lođa.

Svaki kvadrat u stanu je funkcionalan i iskorišćen. Hodnik ima veliki plakar (urađen po meri). Kuhinja je, takođe, rađena po meri i opremljena je svim potrebnim aparatima (ugradna rerna, indukciona ugradna ploča, ugradna mikrotalasna, frižider i mašina za sudove). Kupatilo je opremljeno tuš kabinom i mašinom za pranje i sušenje veša. Spavaća soba ima veliki bračni krevet i ugradni američki plakar. Rasveta u stanu je led (topla) sa potenciometrima. Parket je hrastov. Grejanje u stanu je na gas (leti se ne plaća, a zimi po potrošnji).

Režijski troškovi su niski. Stan se prodaje kompletno namešten. Mogućnost kupovine ili zakupa garažnog mesta.

Odmah useljiv.

Uknjižen na 57m2.

Agencijska provizija 2%

Agent: Gordana Milošević 069/129-79-72 (licenca br. 1763)

57 m2 2 0 0

Podaci

Šifra oglasa K1-21699
Tip Stan
Ukupna cena 199.000 €
Kvadratura 57 m2
Broj soba 2
Parking Da
Usluga Prodaja
Godina izgradnje 2010
Sprat 2
Broj spratova 5
Grejanje Centralno

Karakteristike

  • Lift
  • Uknjiženo
  • Telefon
  • Interfon

Kontakt Info

MOJ KVADRAT D.O.O.

011/ 334 88 71

011/ 334 88 36

065/303-94-39

Mapa

Klikom aktivirajte mapu
  • Telefon

  • 011/ 334 88 71

  • Beograd

  • Beogradska 71