Izdavanje i prodaja lokala u Beogradu na najprometnijim lokacijama.

  • Telefon

  • 011/ 334 88 71

  • 011/ 334 88 36

line
  • Beograd

  • Beogradska 71

line

Vračar, Cvetni trg - Svetozara Markovića, 62m2

Beograd, Vračar

Opis

Vračar, Cvetni trg - Svetozara Markovića

2. 0, 62m2 (lođa 2m2), 2/4, EG na struju, telefon, interfon, podrum

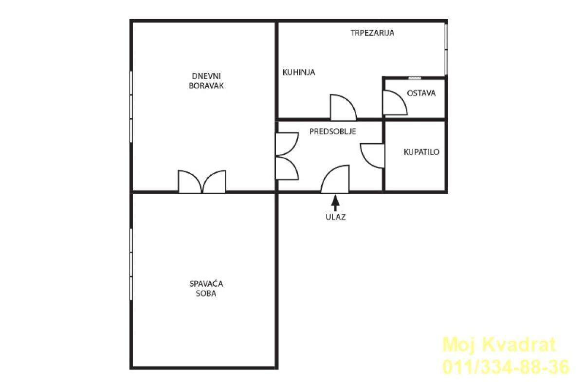
U ponudi dvosoban stan na drugom spratu od ukupno četiri koliko ima u zgradi koja ima sopstveno dvorište. Zgrada je stare gradnje, s tim da je nedavno urađena izolacija zgrade (stiropor 20cm) i nova fasada. Stan je dvostrano orijentisan - dnevna i spavaća soba okrenute su ka ulaznom delu dvorišta, a kuhinja sa lođom je okrenuta ka zadnjem delu dvorišta koji gleda na Beogradsku ulicu.

Stan se sastoji od hodnika iz koga se ulazi u dnevni boravak, a iz boravka u spavaću sobu. Desno od hodnika je kupatilo, a pravo iz hodnika se ulazi u kuhinju sa trpezarijskim delom i ostavom. Stan poseduje i zastakljenu lođu. Stanu pripada i podrum koji dele osam stanara, s obzirom da je po dva stana na spratu.

Podovi u stanu su parketi, prozori su izvorno drveni, a grejanje je etažno na struju (radijatori se greju na elektro kotao jačine 2x2kw). Ulazna vrata su drvena, ali ojačana metalnim šinama.

Uknjižen bez upisane kvadrature, mereno ima 62m2.

Agencijska provizija 2%

Agent: Vladimir Nikolić 065/27-10-107 (licenca br. 6571)

62 m2 2 1 0

Podaci

Šifra oglasa K1-22938
Tip Stan
Ukupna cena 260.000 €
Kvadratura 62 m2
Broj soba 2
Broj kupatila 1
Usluga Prodaja
Sprat 2
Broj spratova 4
Grejanje EG

Karakteristike

  • Podrum
  • Uknjiženo
  • Telefon
  • Interfon

Kontakt Info

MOJ KVADRAT D.O.O.

011/ 334 88 71

011/ 334 88 36

065/303-94-39

Mapa

Klikom aktivirajte mapu
  • Telefon

  • 011/ 334 88 71

  • Beograd

  • Beogradska 71