Izdavanje i prodaja lokala u Beogradu na najprometnijim lokacijama.

  • Telefon

  • 011/ 334 88 71

  • 011/ 334 88 36

line
  • Beograd

  • Beogradska 71

line

Zvezdara, Olimp - Dušana Radovića, 38m2

Beograd, Zvezdara

Opis

Zvezdara, Olimp - Dušana Radovića

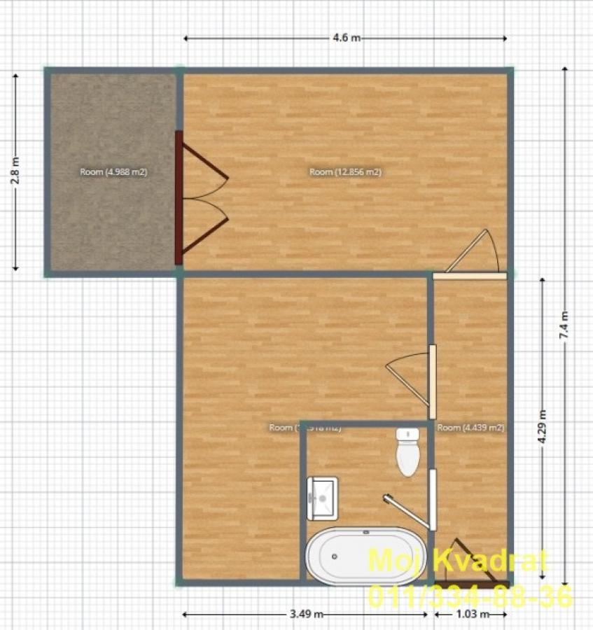
1. 5, 38m2 (terasa 5m2), VPR/3, grejanje na gas, telefon, interfon, podrum, parking

U ponudi za prodaju jednoiposoban stan, kompletno renoviran pre tri godine na odličnoj lokaciji.

Zgrada poseduje bazen koji mogu koristiti stanari. Takođe, parking mesto je uračunato u cenu stana.

U neposrednoj blizini SC Olimp, Zvezdarske šume i ostalih sadržaja koji su neophodni za ugodan i kvalitetan život.

Prodaje se opremljen sa kompletnim nameštajem i predstavlja idealnu priliku za život ili investiciju.

Uknjižen na 33m2 korisne površine, stvarna merena površina iznosi 38m2.

Agencijska provizija 2%

Agent: Jelena Ninković 064/54-33-192 (licenca br. 702)

38 m2 1.5 1 0

Podaci

Šifra oglasa K1-22968
Tip Stan
Ukupna cena 119.000 €
Kvadratura 38 m2
Broj soba 1.5
Broj kupatila 1
Parking Da
Usluga Prodaja
Godina izgradnje 2004
Sprat vp
Broj spratova 3
Terasa Da
Grejanje Gas

Karakteristike

  • Podrum
  • Uknjiženo
  • Telefon
  • Interfon

Kontakt Info

MOJ KVADRAT D.O.O.

011/ 334 88 71

011/ 334 88 36

065/303-94-39

Mapa

Klikom aktivirajte mapu
  • Telefon

  • 011/ 334 88 71

  • Beograd

  • Beogradska 71