Izdavanje i prodaja lokala u Beogradu na najprometnijim lokacijama.

  • Telefon

  • 011/ 334 88 71

  • 011/ 334 88 36

line
  • Beograd

  • Beogradska 71

line

Stari grad, Kalemegdan - Zmaja od Noćaja, 68m2

Beograd, Stari Grad

Opis

Stari grad, Kalemegdan - Zmaja od Noćaja

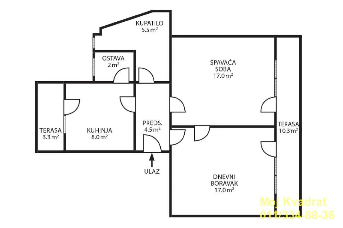
2. 0, 68m2m2 (dve terase 14m2), 3/5, CG, lift, telefon, interfon, podrum

Izdaje se svetao, dvostrano orijentisan i izuzetno komforan dvosoban stan, smešten na trećem spratu kvalitetne posleratne zgrade sa liftom. Zgrada se nalazi u mirnom delu ulice, sa urednim ulazom i interfonom.

Stan ima grejanje na struju, ukupne grejne površine 54m2, uz dve terase od kojih veća gleda na ulicu, dok je manja okrenuta ka dvorištu. Visina plafona iznosi 2. 8m.

Jedna od dve sobe je bez nameštaja, što omogićava zakupcu da je uredi prema sopstvenom ukusu i potrebama.

Stan ima niske komunalne troeškove, šro ga čini posebno ekonomičnim za život ili rad. Stan je u procesu prodaje; eventualni rok za iseljenje je mesec dana.

Obavezan depozit u visini jedne mesečne zakupnine.

Agencijska provizija u skaldu sa Opštim uslovima poslovanja.

68 m2 2 1 0

Podaci

Šifra oglasa K1-20240
Tip Stan
Ukupna cena 800 €
Kvadratura 68 m2
Broj soba 2
Broj kupatila 1
Usluga Izdavanje
Sprat 3
Broj spratova 5
Terasa Da

Karakteristike

  • Lift
  • Podrum
  • Telefon
  • Interfon

Kontakt Info

MOJ KVADRAT D.O.O.

011/ 334 88 71

011/ 334 88 36

065/303-94-39

Mapa

Klikom aktivirajte mapu
  • Telefon

  • 011/ 334 88 71

  • Beograd

  • Beogradska 71