Izdavanje i prodaja lokala u Beogradu na najprometnijim lokacijama.

  • Telefon

  • 011/ 334 88 71

  • 011/ 334 88 36

line
  • Beograd

  • Beogradska 71

line

Savski venac, Savski trg - Vojvode Milenka, 51m2

Beograd, Savski Venac

Opis

Savski venac, Savski trg - Vojvode Milenka

1. 5, 51m2 (lođa 4m2), 6/8, CG, lift, telefon, podrum

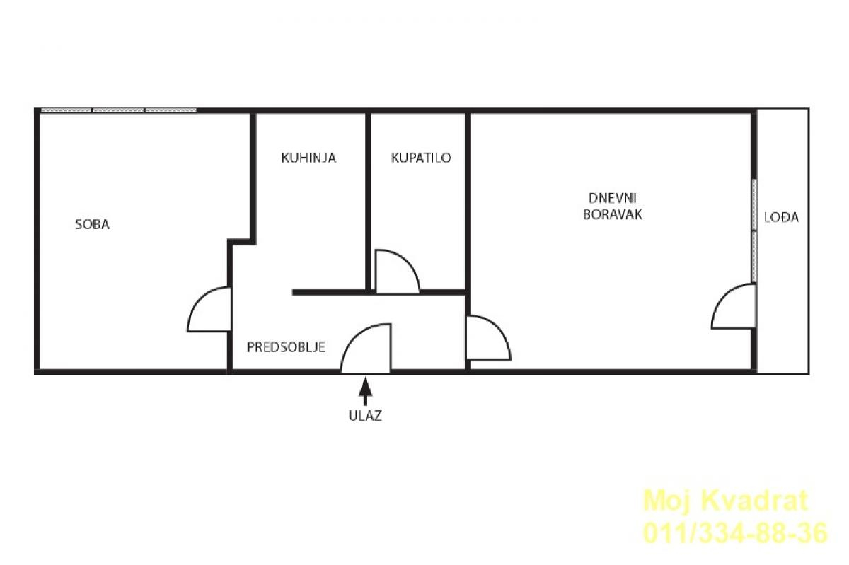
Prodaje se funkcionalan, jednoiposoban stan površine 51m2, na šestom spratu zgrade sa liftom, nadomak Beograda na vodi, jednoj od najtraženijih lokacija u Beogradu. Stan se nalazi u stambenoj zgradi, koja je pozicionirana u mirnom delu ulice, sa lepim pogledom, dobrim susedstvom i urednim ulazom.

Struktura stana: predsoblje povezano sa svim prostorijama, kuhinja sa trpezarijom, spavaća i dnevna soba, kupatilo i lođa. Stanu pripada i podrumska prostorija, pogodna za ostavu ili dodatni skladišni prostor.

Ova prestižna lokacija je u neposrednoj blizini klinika, fakulteta, prevoza, škola, prodavnica, kulturnih sadržaja i svih ostalih sadržaja neophodnih za udoban gradski život. Lokacija stana je idealno saobraćajno povezana sa svim delovima grada.

Odlična prilika za stanovanje, kao i za investiciono ulaganje.

Uknjižen bez upisane kvadrature. Stvarna merena kvadratura iznosi 51m2 od toga 47m2 grejna površina i 4m2 terasa.

Agencijska provizija 2%

51 m2 1.5 0 0

Podaci

Šifra oglasa K1-23021
Tip Stan
Ukupna cena 205.000 €
Kvadratura 51 m2
Broj soba 1.5
Usluga Prodaja
Sprat 6
Broj spratova 8
Grejanje Centralno

Karakteristike

  • Lift
  • Podrum
  • Uknjiženo
  • Telefon

Kontakt Info

MOJ KVADRAT D.O.O.

011/ 334 88 71

011/ 334 88 36

065/303-94-39

Mapa

Klikom aktivirajte mapu
  • Telefon

  • 011/ 334 88 71

  • Beograd

  • Beogradska 71