Izdavanje i prodaja lokala u Beogradu na najprometnijim lokacijama.

  • Telefon

  • 011/ 334 88 71

  • 011/ 334 88 36

line
  • Beograd

  • Beogradska 71

line

Zvezdara, Konjarnik - Deset avijatičara, 73m2

Beograd, Zvezdara

Opis

Zvezdara, Konjarnik - Deset avijatičara

3. 0, 73m2, PR/4, CG, lift, telefon, interfon, podrum, parking

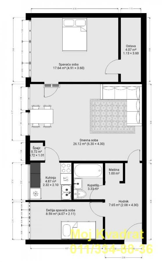
U ponudi za prodaju trosoban stan na Konjarniku, u održavanoj zgradi sa urednim ulazom. Okrenut je ka parku i zelenilu.

Prostorije: dnevna soba, dve spavaće sobe, kuhinja, trpezarija, kupatilo. Lođa je adaptirana u trpezariju. Takođe, ima i pripadajući podrum.

Parket je kvalitetan, hrastov. Stolarija je delimično renovirana.

Uknjižen na 64m2 korisne i 68m2 građevinske površine. Mereno ima 73m2.

Agencijska provizija 2%

Agent: Verica Ilić 063/254-891 (licenca br. 1780)

73 m2 3 1 0

Podaci

Šifra oglasa K1-23182
Tip Stan
Ukupna cena 210.000 €
Kvadratura 73 m2
Broj soba 3
Broj kupatila 1
Parking Da
Usluga Prodaja
Godina izgradnje 1967
Sprat pr
Broj spratova 4
Grejanje Centralno

Karakteristike

  • Lift
  • Podrum
  • Uknjiženo
  • Telefon
  • Interfon

Kontakt Info

MOJ KVADRAT D.O.O.

011/ 334 88 71

011/ 334 88 36

065/303-94-39

Mapa

Klikom aktivirajte mapu
  • Telefon

  • 011/ 334 88 71

  • Beograd

  • Beogradska 71