Izdavanje i prodaja lokala u Beogradu na najprometnijim lokacijama.

  • Telefon

  • 011/ 334 88 71

  • 011/ 334 88 36

line
  • Beograd

  • Beogradska 71

line

Savski venac, Dedinje - Boška Petrovića, 61m2

Beograd, Savski Venac

Opis

Savski venac, Dedinje - Boška Petrovića

2. 0, 61m2 (terasa 2m2), 4/4, CG, telefon, interfon, podrum, parking

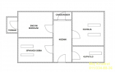
U ponudi šarmantan stan u potkrovlju uredno održavane zgrade, okružene parkom. Stan je veoma funkcionalan i renoviran 1990. godine.

Iz predsoblja se ulazi u sve prostorije - dnevni boravak izlazi na terasu sa pogledom na park, prostrana spavaća soba, kuhinja sa trpezarijom, kupatilo sa prirodnom ventilacijom, garderober.

Iz stana se izlazi na manji uređen tavanski prostor koji služi za odlaganje stvari.

Ispred zgrade ima dovoljno parking mesta bez zone.

U neposrednoj blizini su škola, vrtić, marketi...

Za svaku preporuku!

Uknjižen na 55m2 korisne površine.

Agencijska provizija 2%

Agent: Mirjana Mimi Stanojević 063/367-021 (licenca br. 1378)

61 m2 2 1 0

Podaci

Šifra oglasa K1-23228
Tip Stan
Ukupna cena 179.000 €
Kvadratura 61 m2
Broj soba 2
Broj kupatila 1
Parking Da
Usluga Prodaja
Sprat 4
Broj spratova 4
Terasa Da
Grejanje Centralno

Karakteristike

  • Podrum
  • Uknjiženo
  • Telefon
  • Interfon

Kontakt Info

MOJ KVADRAT D.O.O.

011/ 334 88 71

011/ 334 88 36

065/303-94-39

Mapa

Klikom aktivirajte mapu
  • Telefon

  • 011/ 334 88 71

  • Beograd

  • Beogradska 71