Izdavanje i prodaja lokala u Beogradu na najprometnijim lokacijama.

  • Telefon

  • 011/ 334 88 71

  • 011/ 334 88 36

line
  • Beograd

  • Beogradska 71

line

Čukarica, Čukarička padina - Strugarska, 74m2

Beograd, Čukarica

Opis

Čukarica, Čukarička padina - Strugarska

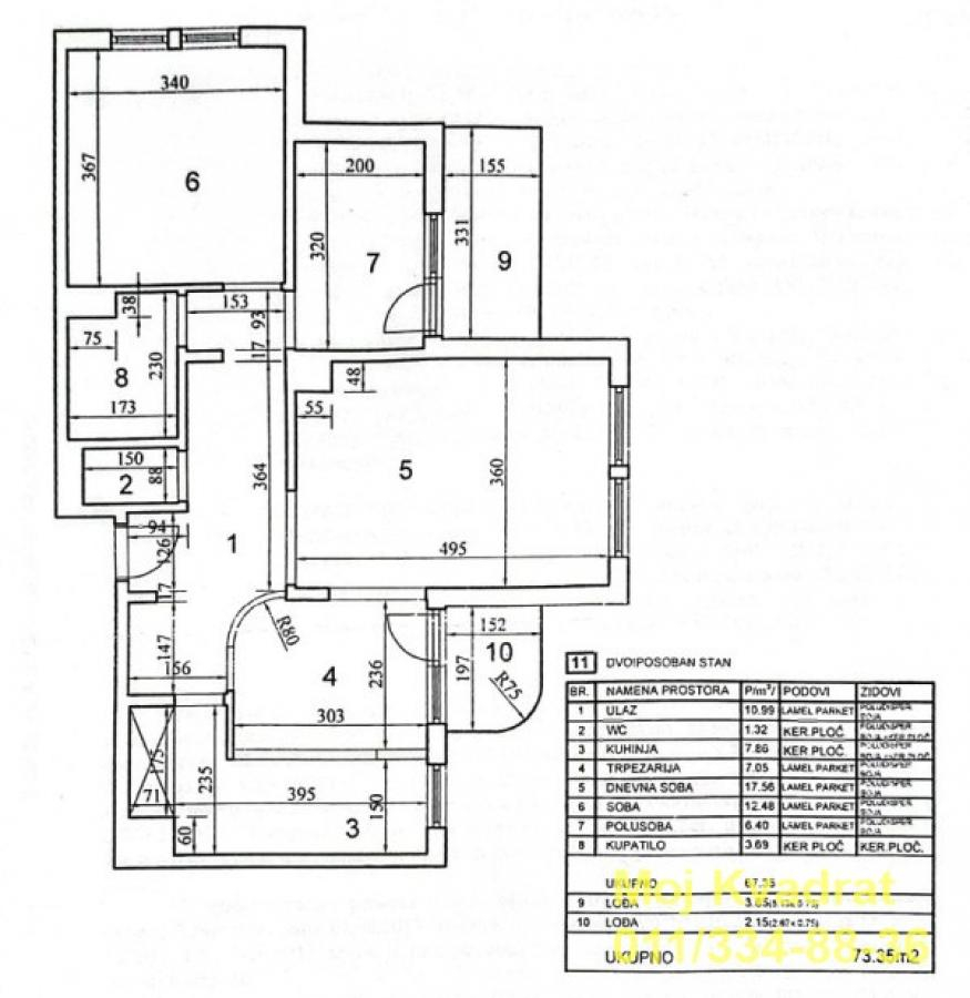
2. 5, 74m2 (dve lođe 7m2), 3/7, CG, inverter klime, lift, interfon, podrum

U ponudi izvorno dvoiposoban stan na trećem spratu od ukupno sedam na odličnoj lokaciji u zgradi iz 1980-ih godina sa liftom, centralnim grejanjem i urednim ulazom. Stan je izuzetno svetao, dvostrano orijentisan i sa odličnim rasporedom prostorija.

Stan je korišćen kao kancelarijski prostor i adaptiran je tako da ima četiri odvojene kancelarije (prostorije), predsoblje, kuhinju, dve lođe, kupatilo i toalet.

Zamenjena je stolarija sa kvalitetnim PVC profilima (sa roletnama), kao i sigurnosna vrata. Lamelni parket je prekriven laminatom zbog lakšeg održavanja, ali može da se vrati u pređašnje stanje. Kupatilo i toalet su za sređivanje. Centralno grejanje je ođavljeno , s tim da su vertikale i dalje tople i stan se greje sa inverter klimama. Postoji mogućnost ponovnog priključenja na centralno grejanje.

Odličan za kancelarijski prostor ali i za stambeni (uz minimalne adaptacije).

Uknjižen na 74m2 građevinske i 67m2 korisne površine.

Agencijska provizija 2%

Agent: Jasmina Veljić 063/204-494 (licenca br. 959)

74 m2 2.5 1 0

Podaci

Šifra oglasa K1-22936
Tip Stan
Ukupna cena 210.000 €
Kvadratura 74 m2
Broj soba 2.5
Broj kupatila 1
Usluga Prodaja
Godina izgradnje 1980
Sprat 3
Broj spratova 7
Grejanje Centralno

Karakteristike

  • Lift
  • Podrum
  • Uknjiženo
  • Klima
  • Interfon

Kontakt Info

MOJ KVADRAT D.O.O.

011/ 334 88 71

011/ 334 88 36

065/303-94-39

Mapa

Klikom aktivirajte mapu
  • Telefon

  • 011/ 334 88 71

  • Beograd

  • Beogradska 71